Antibes -Juan-les-Pins // New Build – 1-bedroom // 50 m from the Sea
Mandat: 25003
€365,000
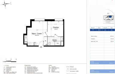
An absolutely exceptional and extremely rare address in Antibes: a brand-new seafront development. Set directly facing the Mediterranean, in the heart of Antibes- Juan-les-Pins, this unique project brings iconic former hotels back to life, fully restored and complemented by high-end contemporary buildings. A truly outstanding project where heritage, elegance and modernity meet in a privileged setting. Key highlights: • Ultra-rare front-line seafront location • Generous volumes // outstanding natural light // premium-quality finishes • High-end new residence // elegant architecture inspired by the Belle Époque • Carefully landscaped grounds with a Mediterranean atmosphere • Just 50 m from the sea and beaches // a few steps from shops and restaurants • A landmark address in Antibes / Juan-les-Pins A limited selection of 2-bedroom apartments available from € 725,000.

